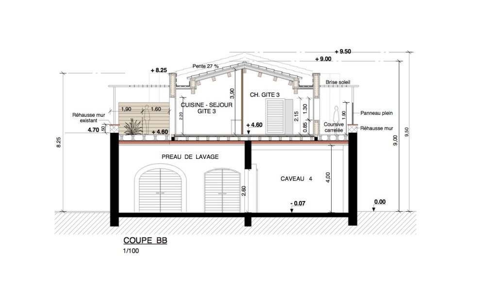
En ce début d’année nous commençons la construction de 3 gites en ossature bois dans le centre ville de banyuls


Les 3 gites constituants un ensemble unique sont posés sur des caveaux où nos amis les viticulteurs de banyuls y fabriquent et vinifient leurs vins .
Délai de construction hors d’eau / hors d’air : 6 semaines
Couverture en tuiles mécaniques Dc10
Finitions intérieures


Brise soleil et terrasse
Finitions intérieures
